最新免费电影_热门电影在线观看_上成影视网_蓝光电影美剧影视大全_免费在线观看高清版国产一级一极性活片免费观看|激情综合五月开心婷婷|欧美a在线播放

當前位置: 首頁 > 熱裝樓盤 > 戶型分析 > 白金漢府136平米新中式風格戶型解析
白金漢府136平米新中式風格戶型解析
來源:金舍裝飾 瀏覽: 更新時間:2021-10-16 10:14:54
項目地址:白金漢府
裝修面積:136平米
裝修風格:新中式風格
設計師:趙昱


戶型解析
優(yōu)點分析:
1.布局合理,動靜分離
2.公共空間大,儀式感強
3.戶型空間方正
4.三室兩廳兩衛(wèi)功能分區(qū)充足,可以滿足不同需求
5.衛(wèi)生間空間相對比較大,可以做干濕分區(qū)
6.客廳觀景陽臺很開闊
 
缺點
1.餐廳及廚房采光性差,需要通過設計手法來解決
2.入戶沒有鞋帽柜,需要合理布置
3.廚房空間相對較小,不能滿足電器的使用

項目地址:白金漢府
裝修面積:136平米
裝修風格:新中式風格
設計師:張星燦


原始戶型圖
戶型解析
優(yōu)點分析:
1.布局合理,動靜分離
2.公共空間大,儀式感強
3.戶型空間方正
4.三室兩廳兩衛(wèi)功能分區(qū)充足,可以滿足不同需求
5.衛(wèi)生間空間相對比較大,可以做干濕分區(qū)
6.客廳觀景陽臺很開闊
 
缺點
1.餐廳及廚房采光性差,需要通過設計手法來解決
2.入戶沒有鞋帽柜,需要合理布置
3.廚房空間相對較小,不能滿足電器的使用

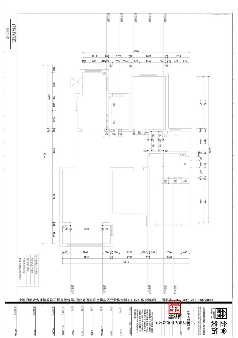
拆除圖
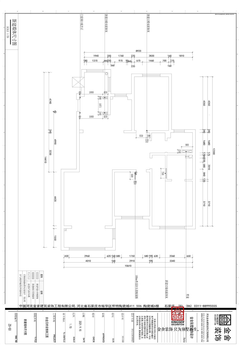
新建圖
平面布置圖

拆改方法:
把大門擴出去一米使室內空間變大,廚房墻也打掉做成開放式廚房, 餐廳和廚房相結合使整個空間明亮起來。

 
拆改方法:
把大門擴出去一米使室內空間變大,廚房墻也打掉做成開放式廚房, 餐廳和廚房相結合使整個空間明亮起來。

服務設計師

擅長風格:美式風格 中式風格

擅長戶型:躍層 四居

設計理念:以生活滋養(yǎng)設計,以設計提高生活

預約設計師

裝修無憂 免費報價

更多 >>

相關案例

白金漢府136平新中式風格裝修效果圖

風格:中式風格 戶型:三居 面積:136㎡

家裝資訊

2025-08-20 別墅廚房裝修:避開這些坑,做飯更輕松?
2025-07-06 石家莊裝修公司揭秘:法式風格吊頂?shù)倪x擇與裝修要點
2025-06-27 石家莊別墅裝修小課堂:歐式家具清潔保養(yǎng)全攻略
2025-06-17 石家莊室內裝修:打造不壓抑的高級意式風格
2025-06-13 石家莊夏季別墅裝修,鋪地板的關鍵注意事項
2025-06-12 家里裝修有必要裝新風系統(tǒng)嗎?
快速報價

金舍裝飾 只為別墅而生

預約設計師